Design Series: House Design Greenshoal 230
The house design Greenshoal 230 is one of our newest family homes.
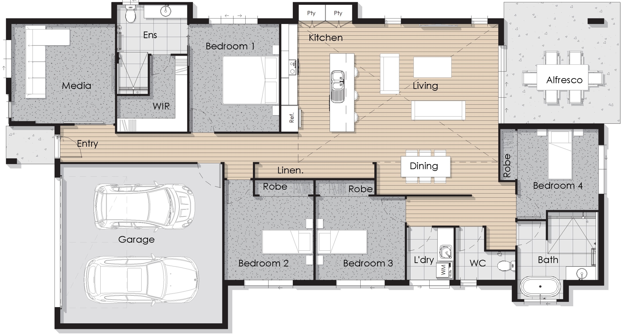
The Greenshoal 230 features a functional open-plan kitchen, dining, and living area that seamlessly flows to the outdoors—perfect for entertaining family and friends. A 4 bedroom home design with main bedroom which features a walk in robe and ensuite, overall this is a great home to raise a family.
Gemini Homes have been the innovators of smart design in Mackay for over 30 years. Your local house and land specialists. Come in and experience our one stop shop from finance to design. We even have an in house interior decorator. For all your decorating needs!






