Display Home – 24 Waters Blvd Ooralea Waters Estate

OPEN NOW our brand new display home at Waters Blvd, Ooralea Waters Estate. Gemini homes house design Greenshoal 230 is a brand new home design. Adding to the Greenshoal design series.
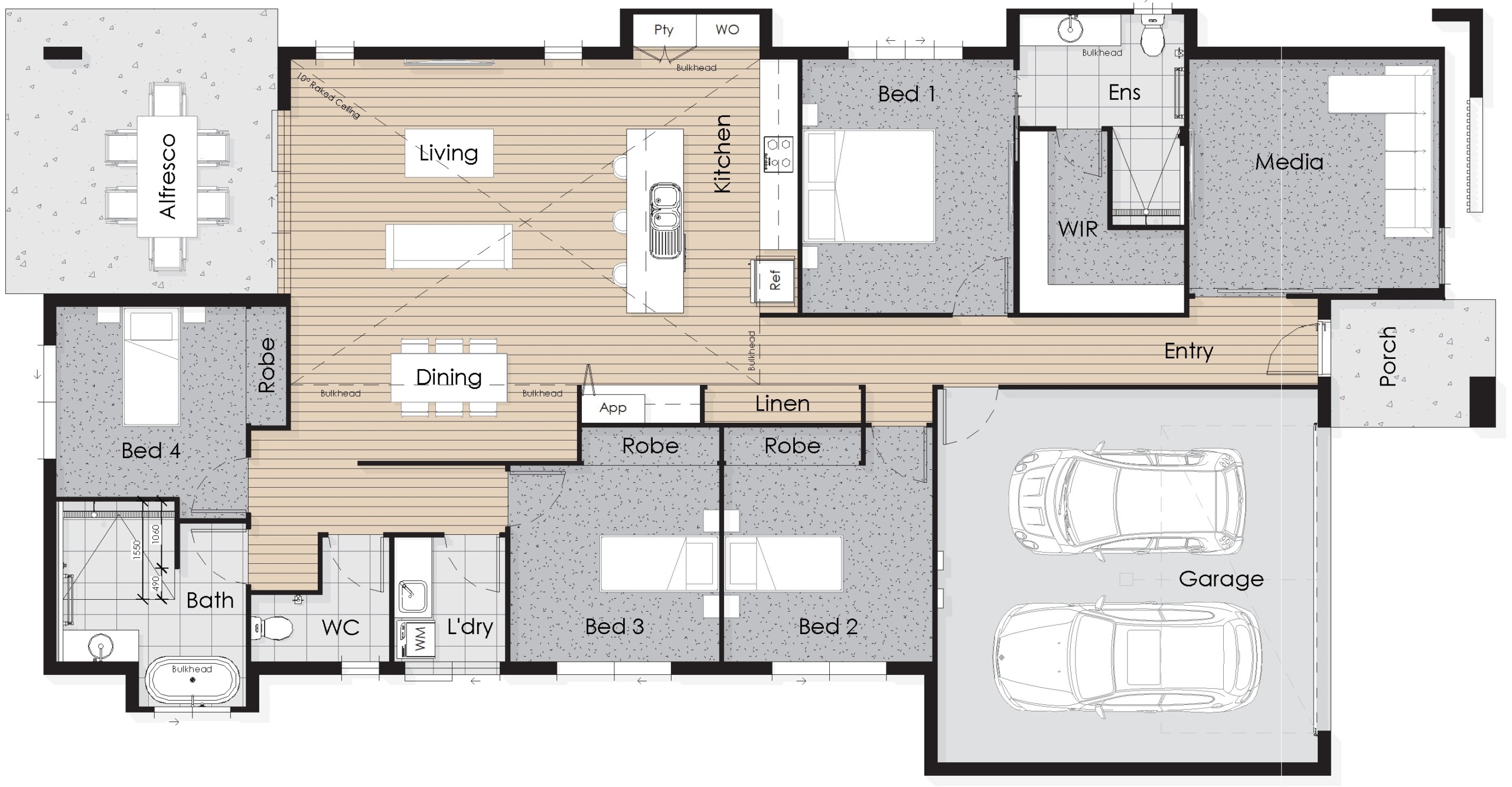
The Greenshoal 230 features a functional open-plan kitchen, dining, and living area that seamlessly flows to the outdoors—perfect for entertaining family and friends. A 4 bedroom home design with main bedroom which features a walk in robe and ensuite, overall this is a great home to raise a family.
Investment Opportunity: As this home is currently used as a Gemini Display Home. Gemini Homes can offer a Guarantee Rent Back.
Initial Terms – Lease term 2 years & 2 x 6 month option terms with lease back at $900/week. There is also an option for Gemini Homes to vacate early during the lease terms with the new owner able to seek new tenants at current market rental rates and that if the current market rental rate is less than the rental rate that Gemini Homes are paying then we will make up the difference.
Note: Sale price does not include any display furniture, garage fit out or any other items required for display and that these will be removed when Gemini Homes vacate.
This is an amazing opportunity as Gemini Homes is not your normal tenant. We will be fully maintaining your property and will be in a ‘As New’ condition for the life of the tenancy with Gemini Homes.
Gemini Homes your local house and land specialists. We have been designing and building in the Mackay region for over 30 years! With our very own interior designer we are your one stop shop.
 
					 
							 
							 
							 
							 
							 
							 
							 
							
